
Teardown house, tight budget, and toddlers—Sohvi and Teemu’s bold rescue of the forgotten log house
The roof leaked, squirrels lived upstairs, and you could push a fist through the living room corner, yet Sohvi and Teemu Laine still wanted to take on the project. In ten years, they transformed the old, forgotten log house into a charming home for their family.
Few houses have ever had such an apt name at the time of purchase as Unhola, which Sohvi and Teemu Laine acquired in 2007. Sohvi and Teemu Laine. Built in 1914 and used only sporadically in summers, the log house’s name, Unhola (Finnish for “oblivion”), fit perfectly. A gem in its day, it had truly fallen into neglect and lacked care. Yet none of that stopped Sohvi and Teemu from falling in love with the building and its enchanting surroundings.
“The house was so different and unique. On top of that, I remembered during the viewing that I had traveled along the river by boat as a child and already then noticed this unusually shaped house,” Sohvi recalls.
The 3,200-square-meter (0.8-acre) lush riverside lot was originally sectioned off from a neighboring property. The lady who had the house built had traveled in America and gathered influences for the building’s distinctive shape. On the showy side facing the river, there was a grand open porch and a beautiful bay window on the adjacent wall. Even the roof structure was extraordinary.










Sold as a teardown, the house had last been renovated in the 1960s. The walls were covered with particleboard and a felt-like fabric. The uninsulated upstairs contained two summer rooms made of particleboard. The metal roof was visible, and daylight shone through the upstairs walls. There was no access to the base floor; the leaking roof had caused rot damage; from beside a bird’s nest in the living room, you could see outside, and you could shove a fist through the corner. The house already had inhabitants: there was a huge squirrel nest upstairs and bats at the roof ridge. Mice had also enjoyed their stay.
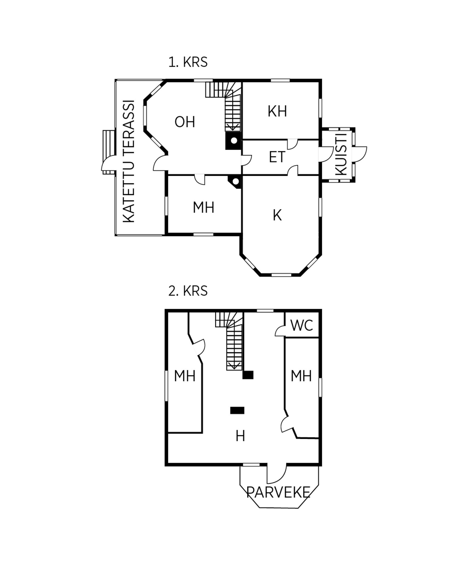
Completed in 1914, the house measures 170 square meters (1,830 sq ft). The lower part is log construction and the upper part is wood. Downstairs there is a kitchen, living room, the parents’ bedroom, and a bathroom. Upstairs there is another living room, a landing, children’s rooms, and a toilet. In the outbuilding there is a sauna, washroom, and lounge. The lot is 3,200 square meters (0.8 acres).
Sohvi and Teemu’s prior renovation experience was limited to updating the surfaces of their 1940s apartment.
“My parents were mostly horrified, while Sohvi’s parents encouraged us to buy the place. But after we made the decision, they all supported our project wholeheartedly,” Teemu recalls.
No wonder the Unhola project was so daunting, because at the time Sohvi was still studying in Helsinki and their children Aivi and Ukko were only one and three years old.
“We love spending time at home because there's always something interesting for both of us to do.”














Sohvi’s childhood home is in the same village as Unhola, so the family sold their city apartment and moved in with Sohvi’s parents. After they got the permit to convert the house from a summer place into a year-round home, a massive demolition, cleaning, and recycling effort began. All belongings were sorted, particleboard and glass wool were removed from the walls, and the lower and intermediate floors were opened up. Originally, sand and moss had been used as insulation in the base floor, and in a previous renovation glass wool had been added on top. All old materials were removed so the crawl space could ventilate again. The roof and its structures had to be replaced, and more supports added, following plans drawn up by a structural engineer.














Preserving the old building heritage has been the guiding principle throughout the renovation.
For Sohvi and Teemu it was obvious that the house would be renovated using traditional methods, saving as much as possible of the old and using breathable materials. Preserving historical building heritage is very important to them.
“We never used a nail gun on the worksite. Everything has been done, and still is done, with a hammer and nails,” Teemu says.
Apart from electrical, plumbing, and sheet metal work, the couple has done everything themselves.
“Our budget was really tight. We reused the sound logs from the partly collapsed sauna to fix the log damage in the house. We saved all other usable materials, too,” Sohvi says.
Once the spread of moisture and rot damage had been halted, the house frame was left to ventilate. Meanwhile, on the site of the demolished sauna, an outbuilding designed by architect Juhani Boman was erected. It included a sauna and washing area as well as a lounge with a kitchenette and sleeping space on a loft, just as the couple wanted.
After living all together for a year and a half, the family was able to move into the outbuilding in 2009.
“Just think, I cooked our meals here, and the kids were still so little,” Sohvi reminisces in the lounge of the outbuilding.
The outbuilding gave them time to plan the main house, which Sohvi and Teemu describe as having been loosely designed.
“We visited Hvitträsk, Halosenniemi, Fiskars, and the Metsänkylä Barn to look for ideas. The Loviisa Old Houses event was also inspiring,” Sohvi says.
A shared vision guided their planning, but the house itself dictated slopes and plumbing locations. For instance, where the current bathroom sits—formerly the kitchen—there was a root cellar filled with water.
“We ran the water pipes through there into the house. The root cellar was emptied and covered,” Teemu explains.






Renovating the house was easier because the family lived on the same property. The project progressed slowly and taught them new skills, such as tiling the bathroom for Sohvi and doing log work for Teemu.
“It helped that there were many types of tasks going on at the same time. Whenever one job got tedious, it was easy to switch to something else,” Teemu says.
The family moved into the house once the downstairs was finished, and the renovation continued gradually upstairs. In addition to the balcony, they built an open lounge and work area, a toilet, and rooms for the children.
The projects certainly didn't end when the house was completed. They have already renovated the yard sauna once, and Sohvi and Teemu built a glass porch on what is now the house’s main facade. They are planning at least a boat shed down by the river, and they've also talked about building a smoke sauna. In recent years, the couple has focused on the garden.
“Working on things is a lifestyle for us and a fun activity to share,” Sohvi sums up in Unhola’s yard.





















